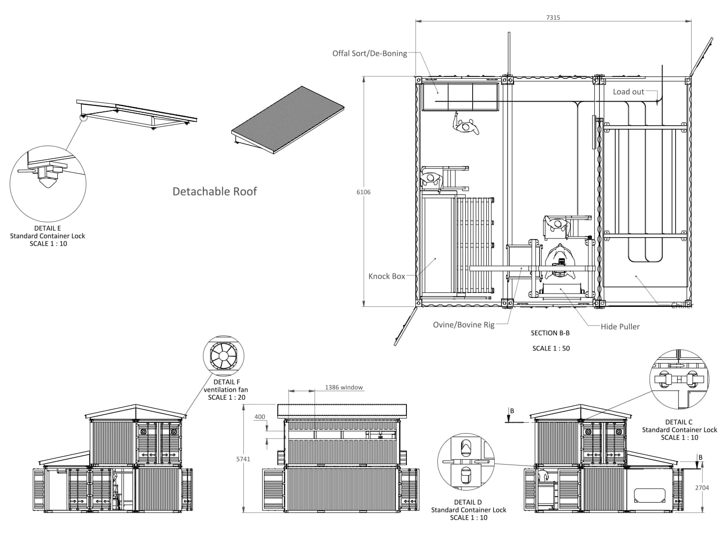
Our engineering team is proud to announce the construction of our first container beef abattoir - a new development following the success of our containerised facilities for pigs and sheep.
This new model has already attracted significant interest from potential customers seeking a relocatable, self-contained abattoir solution. Designed with practicality and versatility in mind, the system can be disassembled into three main sections for easy transport and reassembly at a new site.
Although built as a beef abattoir, it can also be configured to handle sheep and pig processing, making it an ideal option for operations requiring flexibility or mobility.
The first unit is currently under construction and is available for sale. If you’re looking for a complete, transportable abattoir setup, get in touch with our team today to discuss specifications and availability.
